3-комн. 85,55 м² ・ № 1 ・ этаж 2/14 ・ ЖК Муус

сдан

г. Якутск, ул. Кальвица, д. 18

Название ЖК 

Застройщик 

ООО СЗ ТЕКТА

Стадия 

сдан

Ввод дома 

3 кв. 2025

Выдача ключей

46008

Отделка 

Черновая

Теплый паркинг 

нет

Цена

15 392 350 ₽

Цена за м2

179 922 ₽

Название ЖК 

Застройщик 

ООО СЗ ТЕКТА

Стадия 

сдан

Ввод дома 

3 кв. 2025

Выдача ключей

46008

Отделка 

Черновая

Теплый паркинг 

нет

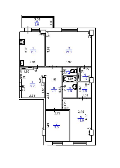
Параметры квартиры

Общие параметры

Общая площадь

85.55 м2

Этаж

2/14

№ квартиры

1

№ подъезда

1

Технические

Отделка

Черновая

Свободная планировка

нет

Материал стен

Монолит-кирпич

Высота потолков

2,7 м

Особенности

Угловая

да

Двухэтажная

нет

Кол-во санузлов

1

Кол-во лоджий

1

О жилом комплексе

Жилой комплекс «МУУС» возводится специализированным застройщиком «Текта» в городе Якутске по адресу улица Кальвица, дом 18. Объект представляет собой многоквартирный жилой дом переменной этажности до 14 этажей, строящийся по монолитно-каркасной технологии с заполнением стен мелкоштучными каменными материалами. Завершение строительства и ввод здания в эксплуатацию намечены на четвертый квартал 2025 года. Передача квартир собственникам запланирована до конца марта 2026 года. Проект реализуется с привлечением проектного финансирования и использованием системы эскроу-счетов в Сбербанке.

Жилой фонд включает 170 квартир с высотой потолков 2,7 метра. На первом этаже запроектированы два нежилых помещения для размещения объектов социальной и торговой инфраструктуры. Благоустройство территории предусматривает создание детской игровой и спортивной площадок, а также проведение комплексного озеленения. Для парковки автомобилей выделено 25 гостевых мест непосредственно на территории и 12 мест на прилегающем участке. В здании будут функционировать шесть грузопассажирских лифтов, а для маломобильных граждан предусмотрены специализированные вертикальные и наклонные подъемники.

купидомякт.ру © 2026

Сайт носит исключительно информационный характер. Указанная стоимость объектов может отличаться от реальной, для получения детальной информации необходимо обратиться к представителю компании застройщика. Не является офертой или публичной офертой согласно ст.435, 427 ГК РФ.

Реальное наличие вариантов и цен может отличаться, актуальную информацию уточняйте у представителя компании застройщика.

Информация о минимальной ставке по ипотеке может отличаться в зависимости от дополнительных условий. Сниженные ставки по ипотеке действуют на ограниченный перечень квартир. За подробной информацией просим обращаться к ипотечному менеджеру банка.

Использование сайта означает согласие с Пользовательским соглашением и Политикой конфиденциальности.

© Купидомякт.ру, 2026 Купидомякт.ру — сайт в интернете для поиска недвижимости в г. Якутске. ИП Борисов Владимир Александрович, ОГРНИП 322140000044396 Адрес: 677014, Республика Саха /Якутия/, городской округ город Якутск, город Якутск, улица Можайского, дом 17 корпус 3, квартира 3

купидомякт.ру © 2026