сдан
г. Якутск, ул. Кальвица, д. 18
Стадия
сдан
Ввод дома
3 кв. 2025
Выдача ключей
17.12.2025
Общие параметры
Общая площадь
85.1 м2
Этаж
6/14
№ квартиры
17
№ подъезда
1
Технические
Отделка
Черновая
Свободная планировка
нет
Материал стен
Монолит-кирпич
Высота потолков
2,7 м
Особенности
Угловая
нет
Двухэтажная
нет
Кол-во санузлов
1
Кол-во лоджий
1
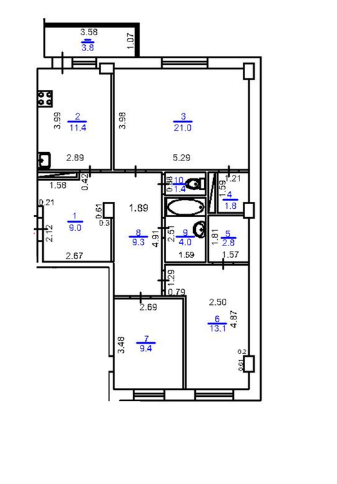
Продается 3-комнатная квартира площадью 85 м² в ЖК Муус в Якутске. Квартира расположена в новостройке и подойдет для проживания, семейной покупки или инвестиций. Актуальная цена — 15 312 700 ₽. На странице можно посмотреть основные характеристики квартиры, планировку, стоимость и подобрать подходящий вариант покупки. Купидомякт.ру помогает сравнить квартиры в новостройках Якутска и найти вариант с комфортным платежом по ипотеке.
Сайт носит исключительно информационный характер. Указанная стоимость объектов может отличаться от реальной, для получения детальной информации необходимо обратиться к представителю компании застройщика. Не является офертой или публичной офертой согласно ст.435, 427 ГК РФ.
Реальное наличие вариантов и цен может отличаться, актуальную информацию уточняйте у представителя компании застройщика.
Информация о минимальной ставке по ипотеке может отличаться в зависимости от дополнительных условий. Сниженные ставки по ипотеке действуют на ограниченный перечень квартир. За подробной информацией просим обращаться к ипотечному менеджеру банка.
Использование сайта означает согласие с Пользовательским соглашением и Политикой конфиденциальности.
© Купидомякт.ру, 2026 Купидомякт.ру — сайт в интернете для поиска недвижимости в г. Якутске. ИП Борисов Владимир Александрович, ОГРНИП 322140000044396 Адрес: 677014, Республика Саха /Якутия/, городской округ город Якутск, город Якутск, улица Можайского, дом 17 корпус 3, квартира 3
Используя наш сайт, вы даете согласие на обработку файлов cookie и пользовательских данных.
Если вы не хотите, чтобы ваши данные обрабатывались, пожалуйста покиньте сайт.