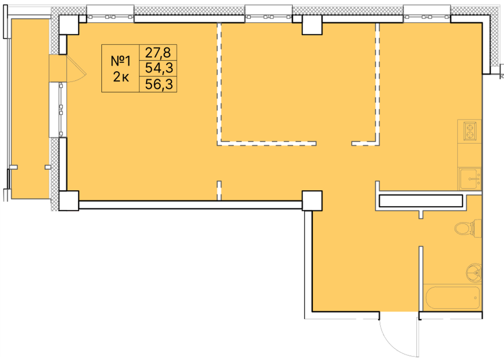
2-комн. 56,30 м² ・ № 55 ・ этаж 6/16 ・ ЖК Времена года, Лето (2 очередь)

1 кв. 2026

г. Якутск, ул. Билибина, д. 42, к. 5А

Параметры квартиры

Общие параметры

Общая площадь

56.3 м2

Этаж

6/16

№ квартиры

55

№ подъезда

1

Технические

Отделка

Черновая

Свободная планировка

Материал стен

Монолит-кирпич

Высота потолков

2,70 м

Особенности

Угловая

Двухэтажная

Кол-во санузлов

Кол-во лоджий

О квартире

Продается 2-комнатная квартира площадью 56 м² в ЖК Времена года, Лето (2 очередь) в Якутске. Квартира расположена в новостройке и подойдет для проживания, семейной покупки или инвестиций. Актуальная цена — 8 726 500 ₽. На странице можно посмотреть основные характеристики квартиры, планировку, стоимость и подобрать подходящий вариант покупки. Купидомякт.ру помогает сравнить квартиры в новостройках Якутска и найти вариант с комфортным платежом по ипотеке.

Ипотека

Цена
Первоначальный взнос
Ипотека от

О жилом комплексе

В квартале по улице Билибина в городе Якутске реализуется жилой комплекс «Времена года» от застройщика ООО СЗ «МОНТАЖНИК». Проект включает три многоквартирных жилых дома максимальной этажности 16 уровней. Здания возводятся по монолитно-кирпичной технологии с железобетонным каркасом и стенами из мелкоштучных каменных материалов. Класс энергетической эффективности — C.

Всего в комплексе предусмотрено 449 жилых квартир различной планировки. Для комфорта жителей в каждом подъезде установлено по 2 пассажирских лифта. На территории комплекса организовано гостевое парковочное пространство на 235 машино-мест.

Предусмотрено благоустройство дворовой территории с детской игровой площадкой, озеленением и созданием безбарьерной среды для маломобильных групп населения. Проект реализуется с использованием счетов эскроу в Сбербанке. Плановая дата передачи объектов дольщикам установлена на 2026-2030 годы в зависимости от очереди строительства.

Сайт носит исключительно информационный характер. Указанная стоимость объектов может отличаться от реальной, для получения детальной информации необходимо обратиться к представителю компании застройщика. Не является офертой или публичной офертой согласно ст.435, 427 ГК РФ.

Реальное наличие вариантов и цен может отличаться, актуальную информацию уточняйте у представителя компании застройщика.

Информация о минимальной ставке по ипотеке может отличаться в зависимости от дополнительных условий. Сниженные ставки по ипотеке действуют на ограниченный перечень квартир. За подробной информацией просим обращаться к ипотечному менеджеру банка.

Использование сайта означает согласие с Пользовательским соглашением и Политикой конфиденциальности.

Напишите нам

Стать партнером

info@kupidomykt.ru

© Купидомякт.ру, 2026 Купидомякт.ру — сайт в интернете для поиска недвижимости в г. Якутске. ИП Борисов Владимир Александрович, ОГРНИП 322140000044396 Адрес: 677014, Республика Саха /Якутия/, городской округ город Якутск, город Якутск, улица Можайского, дом 17 корпус 3, квартира 3