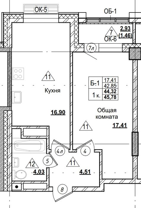
1-комн. 44,32 м² ・ № 161 ・ этаж 5/16 ・ ЖК Город в Парке, блок Б

4 кв. 2027

г. Якутск, Вилюйский тракт, 4 км

Параметры квартиры

Общие параметры

Общая площадь

44.32 м2

Этаж

5/16

№ квартиры

161

№ подъезда

2

Технические

Отделка

Черновая

Свободная планировка

нет

Материал стен

Монолит-кирпич

Высота потолков

2,70 м

Особенности

Угловая

Двухэтажная

Кол-во санузлов

Кол-во лоджий

О квартире

Продается 1-комнатная квартира площадью 44 м² в ЖК Город в Парке, блок Б в Якутске. Квартира расположена в новостройке и подойдет для проживания, семейной покупки или инвестиций. Актуальная цена — 7 357 120 ₽. На странице можно посмотреть основные характеристики квартиры, планировку, стоимость и подобрать подходящий вариант покупки. Купидомякт.ру помогает сравнить квартиры в новостройках Якутска и найти вариант с комфортным платежом по ипотеке.

Ипотека

Цена
Первоначальный взнос
Ипотека от

О жилом комплексе

Жилой комплекс «Город в парке», блок Б — это современный 16-этажный дом комфорт-класса, расположенный по адресу: г. Якутск, Вилюйский тракт, 4 км.

Здание возводится по монолитно-каркасной технологии с применением кирпича и керамических блоков, что обеспечивает высокую надежность и энергоэффективность класса B. В доме предусмотрено 268 квартир различной планировки — от однокомнатных до просторных двухкомнатных, с высотой потолков 2,70 м. Для удобства жильцов установлены четыре грузопассажирских лифта и два подъемника для маломобильных граждан.

Парковочное пространство организовано на 61 гостевое место, дополнительно в здании размещено 50 машино-мест. На территории комплекса предусмотрены детская площадка на верхнем уровне теплой автостоянки, спортивная зона с резиновым покрытием и озеленение площадью более 1,8 тыс. кв. м.

Сайт носит исключительно информационный характер. Указанная стоимость объектов может отличаться от реальной, для получения детальной информации необходимо обратиться к представителю компании застройщика. Не является офертой или публичной офертой согласно ст.435, 427 ГК РФ.

Реальное наличие вариантов и цен может отличаться, актуальную информацию уточняйте у представителя компании застройщика.

Информация о минимальной ставке по ипотеке может отличаться в зависимости от дополнительных условий. Сниженные ставки по ипотеке действуют на ограниченный перечень квартир. За подробной информацией просим обращаться к ипотечному менеджеру банка.

Использование сайта означает согласие с Пользовательским соглашением и Политикой конфиденциальности.

Напишите нам

Стать партнером

info@kupidomykt.ru

© Купидомякт.ру, 2026 Купидомякт.ру — сайт в интернете для поиска недвижимости в г. Якутске. ИП Борисов Владимир Александрович, ОГРНИП 322140000044396 Адрес: 677014, Республика Саха /Якутия/, городской округ город Якутск, город Якутск, улица Можайского, дом 17 корпус 3, квартира 3